Our skills are constantly evolving based on the needs of our customers — from innovative and new product knowledge to code changes and requirements, we stay sharp.
To review our in-depth case studies, including before and after pictures, plans, and design strategies, please provide your name and email address.
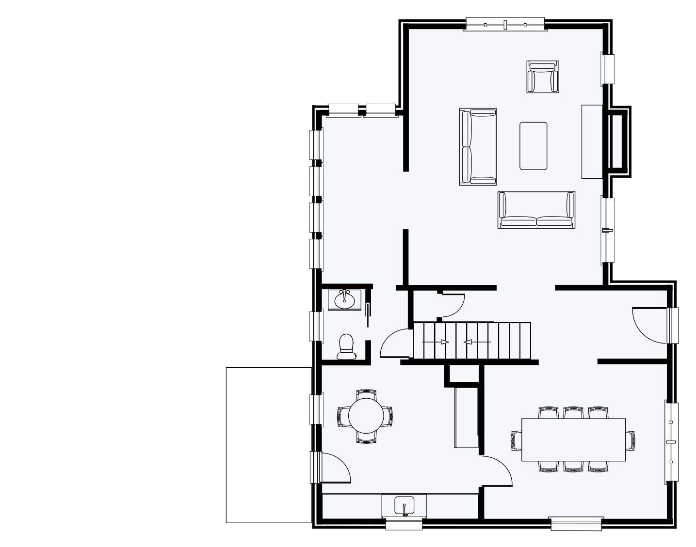
Mt.Lebanon
Home Makeover




There is an undeniable synergy of entertainment and utility in this open floor plan design. In addition to creating storage and functional efficiency and aesthestectics, the renovation corrected structural issues. Gorgeous, full-view windows and doors open up to a lush and private backyard and deck.
OBJECTIVES:
-
Larger kitchen
-
Better flow of space
-
More user-friendly rear entrance from the garage for daily use
-
Easy access to the basement
-
Eliminate water problems from existing basement exterior door
-
Keep antique furniture & fixtures from Europe where the client resided


DESIGN CHALLENGES
-
Keeping original architectural integrity of styling while introducing contemporary details and an open floor plan
-
How to create privacy in porch area
-
Design of the roof for addition so as to accommodate existing second floor's windows



#1: Eliminate the entire rear wall to gain a larger kitchen and family room. A blind beam creates a seamless extension
- Tray ceiling detail was chosen to hide the low pitch rafter and define the space in open plan of kitchen and family room

#2: Incorporate peninsula cabinetry with columns to define space, kitchen & family room. One column is structural, to support blind beam for entire rear wall of original house. To balance, we added a false column on the other side of the peninsula


#3: Custom-made elliptical casing to match existing Eliminating hall closet and creating an open hallway to the new space for better flow and visual from the front entry hall.

#4: Create cozy seating area with exterior fireplace position on side of porch to create privacy.


#5: To maximize family room depth and to clear second floor window, roof pitch in family room is designed to be lower

#6: Mudroom and the side stairs were designed to maximize the space without encroaching on the existing driveway. This achieved by adding exterior steps at the mudroom door.


#7: Removed existing stone veneer on the interior fireplace in the living and installed panelized fireplace architrave with slate surround and hearth. New built-in bookcases flanking the window seat and new fireplace molding made the room bright with clean lines producing a contemporary flare that resonates well with the home's traditional style.
OUR EXCLUSIVE DESIGN AND PRODUCT FEATURES
- Custom range hood

- Stylish pantry with wire mesh front vegetable drawers doubles as a hallway between the kitchen and dining room.

- Honed Negresco kitchen main counter & Honed Calacatta Marble
- Lighting includes LED recessed lights, LED under cabinet lights, LED cove lighting and gorgeous pendants

Cranberry Twp. Kitchen
Renovation
There is a synergy of entertainment space and utility in this open floor plan kitchen design. In addition to creating storage and functional efficiency and asthestectics, the renovation corrected structural issues. Gorgeous, full-view windows and doors open up to a lush and private backyard and deck.
OBJECTIVES
Update the kitchen and fit the new design to the original interior while keeping the original rustic feel.
-
Larger kitchen working space
-
Working island
-
Connect Kitchen to two other rooms
-
Improve lighting in kitchen.
-
Create a dry bar centerpiece in room with ample storage.
OUR DESIGN CHALLENGES
-
Designing within the limitations of post and beam log home construction.
-
Walls are solid wood with no cavity to run the electrical wiring and plumbing line.
-
Walls are not smooth and straight making it difficult to install cabinetry.
-
No cavity in ceiling for recessed lights.
-
Designing an efficient working kitchen.
OUR DESIGN SOLUTIONS
Instead of taking away the entire existing pantry space and adding it to the kitchen, which was the client's thought, we suggested reducing the pantry by a couple of feet and adding that square footage to the kitchen area for the benefit of a handsome, storage infused center.




#1: Create larger opening between kitchen and sitting area to connect great room and kitchen, and also gives more space around island.
-
Maintain smaller walk-in pantry, redesigning it for maximum efficiency and windows for natural lighting.
-
Adding suspended tongue & groove board ceiling between beams, to create continuity with existing dining area ceiling, and create ceiling cavity for recessed lighting in kitchen.
-
Add new seamless natural color hardwood flooring throughout the rooms.
-
Choose lighter-color granite, back splash tile, and glass doors for wall cabinets to brighten.


#2: Conceal existing structural pilaster at peninsula by wrapping with drywall and adding floating shelves to transition from cabinetry to drywall to wood wall.
- Added larger window in kitchen to gain natural light and enjoy the outdoor landscape and wildlife.


#3: Get rid of existing corner cabinet by adding a small closet in pantry for plumbing line and heating duct to service second floor; peninsula end cabinet is accessible from dining room side.
OUR EXCLUSIVE DESIGN AND PRODUCT FEATURES
-
Tall pantry cabinets to hide the heating duct and soil stack.
-
LED recessed lights and under-cabinet task lighting.
-
Chiseled Limestone backsplash tile with Persa Antique granite
-
Rift sawn oak custom cabinetry build by our furniture maker trade-partner.
-
Flip-down drawer fronts for hidden outlets on island.
-
Hubbardton Forge pendant lights & ceiling light – inspired by the flat-bottomed Erlenmeyerblown-glass flask.

#4: Tapered kitchen cabinet legs throughout creating continuity with the existing dining room furniture.
-
Two tone stain cabinetry to add depth and interest.

#5: Glue chip frosted glass for wall cabinets and sliding glass doors in the bar area to add interest and uniqueness.
- DESIGN, ESTIMATING, AND PLANNING - 3 MONTHS
- CONSTRUCTION* - 4- 5 MONTHS
- COST RANGE - We will share this with you when we discuss your project.
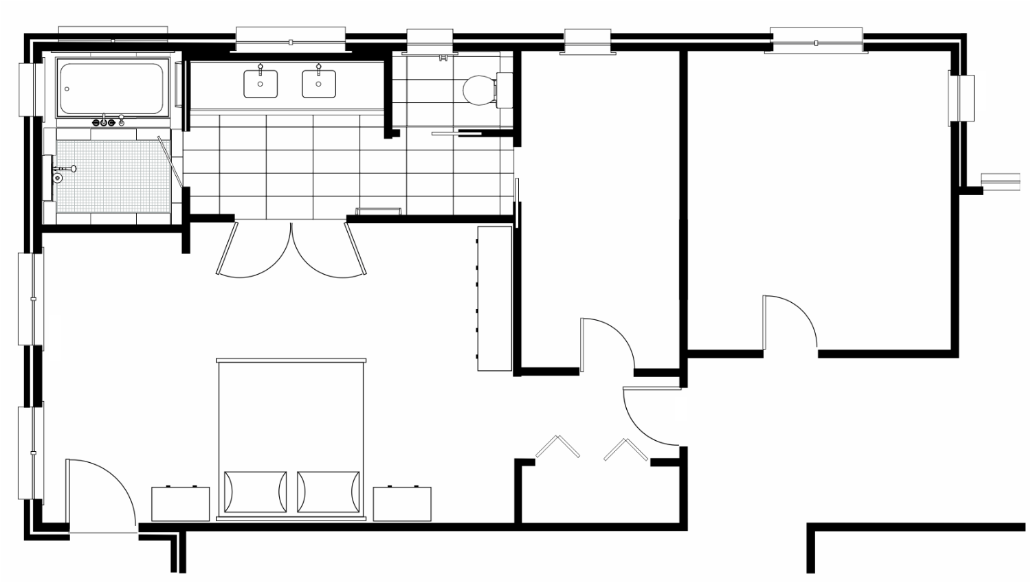
Sewickley Heights Bathroom


Bathroom Renovation
This bath design combined the space from two small bathrooms and two closets into one master bath suite with beautiful views into the surrounding wooded landscape. Now approximately 250 sq. ft., the suite includes a double vanity, spacious shower/bath area, a private water closet, and a large walk-in closet.
OBJECTIVES
Create a functional and soothing master bathroom space to support the customer's needs and wants
-
Bring "the outside, in" with views of the pristine landscape and wildlife
-
Expand the space to include a soaking tub
-
Incorporate aging-in-place amenities
-
Infuse Japanese design elements
OUR DESIGN CHALLENGES
How to create a more open and functional space within the existing home structure
-
Include large, functional walk-in closet
-
Comply with local architectural review board standards on the exterior design
-
Accommodate a person's short stature
-
Provide additional storage
-
Anticipate future mobility challenges
-
Tub capacity needs to be conducive with septic system
-
Incorporate larger windows




#1: Larger windows
-
Combine the space from two small baths and two closets
-
Employ pocket doors to maximize efficiency

#2: Double medicine cabinet crafted from exotic Sapele wood with sliding doors integrated with window as Japanese design feature
-
Low E windows with hidden privacy blinds
-
Match existing exterior details on all new windows to comply with architectural review board standards
-
Create a lower height counter top for height of homeowner
-
Design and build custom vanity cabinetry with pull-outs under sinks
-
No thresholds throughout the space for aging-in-place comfort and ease
-
Substitute standard tub for larger Japanese style soaking tub

#3: No threshold wide doorways
-
Walk-in, no threshold shower entry
-
Designer Grab-bar at tub
-
Pocket doors


#4: A small cabinet, built into the wall, provides hidden and efficient storage in water closet
INFUSION OF HARMONIOUS JAPANESE DESIGN ELEMENTS

#5: Combined tub and shower room reminiscent of a Japanese bath

#6: Textured porcelain tile selected for its resemblance to fabric

#7: Tile set in grid pattern to mimic shoji screen

#8: Glass tile in shower area has the appearance of a Kakejiku, Japanese scroll painting
-
Interior window and door casing style
-
Radiant heating in the floor
- DESIGN, ESTIMATING, AND PLANNING - 4 MONTHS
- CONSTRUCTION* - 4- 5 MONTHS
- COST RANGE - we will share this information with you when we talk about your project.